昆明理工拼搏(中国)2020年硕士研究生招生入学考试试题(A卷)
考试科目代码:446 考试科目名称 :城市规划设计
考生答题须知
1. 请按《准考证》和《招生简章》规定的作图纸进行答题,考生姓名和考生编号写在图纸底部的右下角,写在其它地方的按作弊卷处理,后果由考生自己负责。
2. 请使用规定的作图用笔进行答题,没有特殊要求的全部用铅笔进行绘制。
3. 不准使用涂改液等具有明显标记的涂改用品。
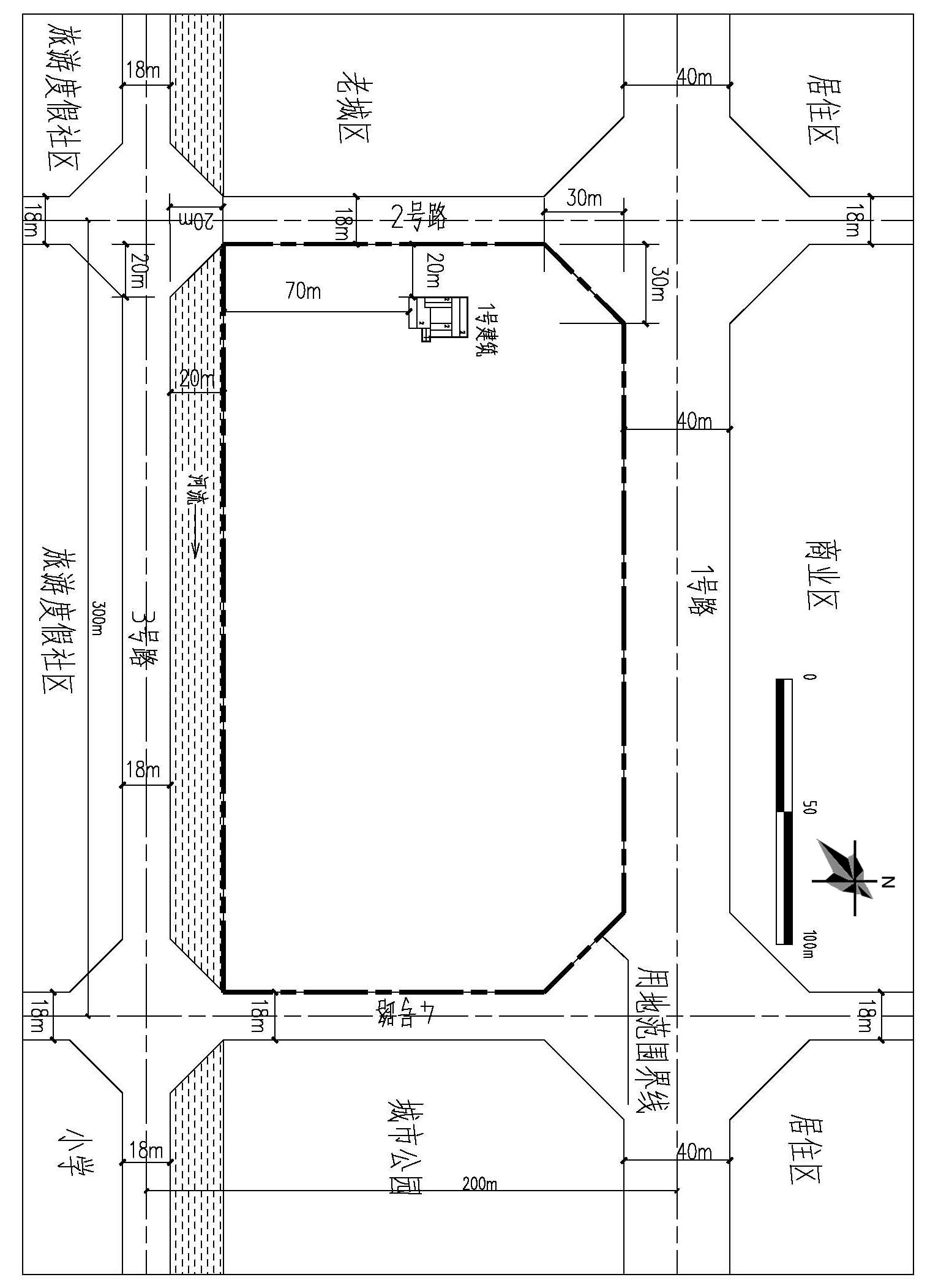
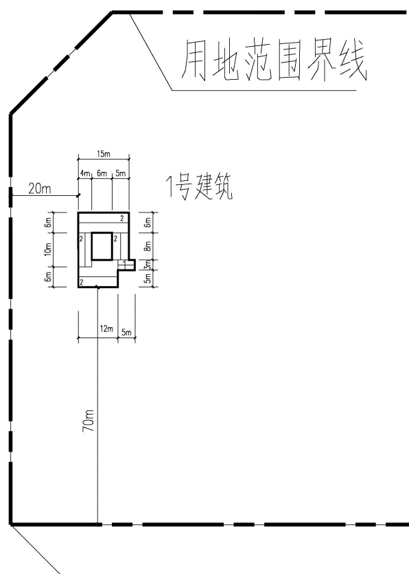
| 南方某旅游小镇地段城市设计(150分) (一) 基地概述: 规划地段位于南方某旅游小镇,位于城市中心区以南15分钟步行距离,周围交通便利(周边用地功能如图所示),场地内部地势平坦,南部有一条河流穿过,水质良好。地段为棚户区改造,原有房屋大多已拆除,尚存西部一栋有完整院落的传统民居(1号建筑),当地政府预备将其申报为历史建筑。地块的南边及西南边已建有相当规模的旅游度假社区(150户),整体环境良好。基地北侧城市道路红线40米,基地东侧、南侧、西侧道路红线18米。总用地面积4.17ha。该地段在上位规划中为商住兼容用地,商住比为4:6。 (二) 规划设计: 1.拟结合周边功能用地现状及交通条件,对该地块进行开发建设。具体内容和建筑面积结合方案自定。 2. 要求: (1)对1号路、2号路、3号路、4号路进行道路横断面设计,并反映在总图中。 (2)按建筑面积1车位/100m2配置相应停车位。地下停车位数不少于总停车位数的50%。 (3)容积率≤1.6。 (4)建筑密度≤40%。 (5)绿地率≥30%。 (6)除特殊说明外建筑栋数、层数、层高自己设定。 (7)基地内建筑限高18米。 (8)基地内设立一个建筑面积≥100 m2的城市公厕。 (9)日照间距1:1。 (10)规划设计需符合国家有关规范。 (三) 成果要求: (1)设计说明及主要经济技术指标。 (2)规划总平面图1:1000,应标注建筑物及空间的功能(名称)、层数,标注车辆及人行出入口位置、风玫瑰、比例尺以及重要间距和尺寸等内容。 (3)功能分区、交通组织、绿地景观等分析图,比例不限。 (4)整体轴测图1:1000。 (5)在A2图纸上墨线手绘(徒手或尺规)完成,上色与否自定,图纸张数2张。 |
昆明理工拼搏(中国)2020年硕士研究生招生入学考试试题
![]() |
昆明理工拼搏(中国)2020年硕士研究生招生入学考试试题
![]() |
原文标题:昆明理工拼搏(中国)2020年硕士研究生入学考试自命题科目试题
原文链接:http://yjs.kmust.edu.cn/info/1016/2981.htm
原文链接:http://yjs.kmust.edu.cn/info/1016/2981.htm
以上就是小编整理的“拼搏在线官网真题:昆明理工拼搏(中国)446城市规划设计2020年硕士研究生入学考试自命题科目试题”的全部内容!更多真题资料请关注“拼搏在线官网专业课真题”栏目!祝拼搏在线官网成功!

