昆明理工拼搏(中国)2020年硕士研究生招生入学考试试题(A卷)
考试科目代码:355 考试科目名称 :建筑学基础
考生答题须知
1. 所有题目(包括填空、选择、图表等类型题目)答题答案必须做在考点发给的答题纸上,做在本试题册上无效。请考生务必在答题纸上写清题号。
2. 评卷时不评阅本试题册,答题如有做在本试题册上而影响成绩的,后果由考生自己负责。
3. 答题时一律使用蓝、黑色墨水笔或圆珠笔作答(画图可用铅笔),用其它笔答题不给分。
4. 答题时不准使用涂改液等具有明显标记的涂改用品。
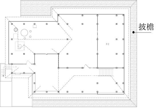
| 1、名词与概念解释(40分) (1)雅典宪章(5分) (2)三朝五门制(5分) (3)粗野主义(5分) (4)建筑物之间防火间距计算(5分) (5)居住建筑的无障碍设计要点(5分) (6)建筑结构所受的作用力,可以按照不同的标准划分成多种类型,按照“受力方向”可划分为垂直荷载、水平荷载和其它荷载;如果按“作用时间”划分,会有哪些类型?(5分) (7)门窗的五大性能指标是什么?(5分) (8)卫生间楼地面的构造要点有哪些?(5分) 2、简答题(按题目要求进行论述和图解)(40分) (1)试论述柯布西耶在《走向新建筑》一书中的主要建筑观点(10分)。 (2)以高层居住建筑剪力墙结构为例,选择保温层材料为EPS板(膨胀型聚苯乙烯泡沫塑料板),配以图示说明墙体外保温是如何解决的?(10分) (3)传统歇山屋面又称“九脊顶”,其外观类似硬山顶与庑殿顶的结合。云南傣族传统民居也有某些地区采用该做法,区别在于正脊稍短,下有披檐。试根据提示简要绘制补充完成单个傣族民居的屋顶平面图和屋顶正立面图,如图(一)(绘图在答题纸上单独完成)。(10分)某傣族民居采用歇山屋面做法,其屋顶平面外轮廓不规整,如图(二),试根据上述提示,简要绘制完成屋顶平面图和屋顶正立面图(以上两个图屋顶均为同坡屋面,正立面角度如上图提示,绘图在答题纸上单独完成)。(10分) |
昆明理工拼搏(中国)2020年硕士研究生招生入学考试试题
![]() 图片(一) ![]() 图片(二) |
昆明理工拼搏(中国)2020年硕士研究生招生入学考试试题
| 三、论述题(70分) (1)林徽因在《论中国建筑之几个特征》中认为:“中国建筑的基本特征在于它的框架结构,这一点与西方的哥德式建筑和现代建筑非常相似”。这点和西方古典建筑形成的基础是砌筑体系,围护和结构合一不同。而我国传统建筑从单体到群体组织上,存在所谓的“家国同构”现象,即不论是在单体的居住建筑,还是在群体组织上,矩形空间的重复和组合构成传统建筑空间的基本特征,试根据上述资料,从结构围护关系——空间组合——空间文化关系的角度出发,简要论述“家国同构”现象形成的可能和原因。(25分) (4)以“瓦屋顶”构造技术变化为例,分析木结构体系的坡屋顶和钢筋混凝土坡屋顶的最大区别是什么?首先图示说明传统木结构体系坡屋顶的瓦屋面构造顺序;随着现代建筑材料和技术的改良,屋顶加入保温和防水要求后,请图示说明改良过的坡屋顶瓦屋面的构造顺序;最后请图示说明混凝土屋面的坡屋顶瓦屋面的构造顺序(20分)。 (3)近十年以来,“建筑实践在乡村”正作为一个社会性事件被广泛关注和讨论。尤其是当代建筑学专业媒体聚焦下的传统乡村建设问题被注入了社会性、伦理、人道主义等人文社会学科向度,乡建问题变得更加复杂和多元。请立足中国乡村振兴的时代背景,结合当代中国乡村实践典型案例,试阐释未来中国乡村建设活动中,建筑学作为一种参与主体,介入乡建的主要模式与活化更新的有效策略和方法。(25分) |
原文标题:昆明理工拼搏(中国)2020年硕士研究生入学考试自命题科目试题
原文链接:http://yjs.kmust.edu.cn/info/1016/2981.htm
原文链接:http://yjs.kmust.edu.cn/info/1016/2981.htm
以上就是小编整理的“拼搏在线官网真题:昆明理工拼搏(中国)355建筑学基础2020年硕士研究生入学考试自命题科目试题”的全部内容!更多真题资料请关注“拼搏在线官网专业课真题”栏目!祝拼搏在线官网成功!

